Flexibelt kontor nära lastkaj – i Bilpalatset
I dynamiska Hagastaden omvandlas anrika Bilpalatset från 1926 till en toppmodern arbetsplats med industriell charm. Kliv in i husets ljusa och välkomnande entréer. Slå dig ned för ett morgonmöte i loungen eller ta med en kaffe och macka på språng från husets café. Till fastigheten hör även ett parkeringsgarage för bil och cykel samt gemensamma omklädningsrum och duschar. Allt för ett bekvämt arbetsliv. Tillträde tidigast årsskiftet 2026/2027.
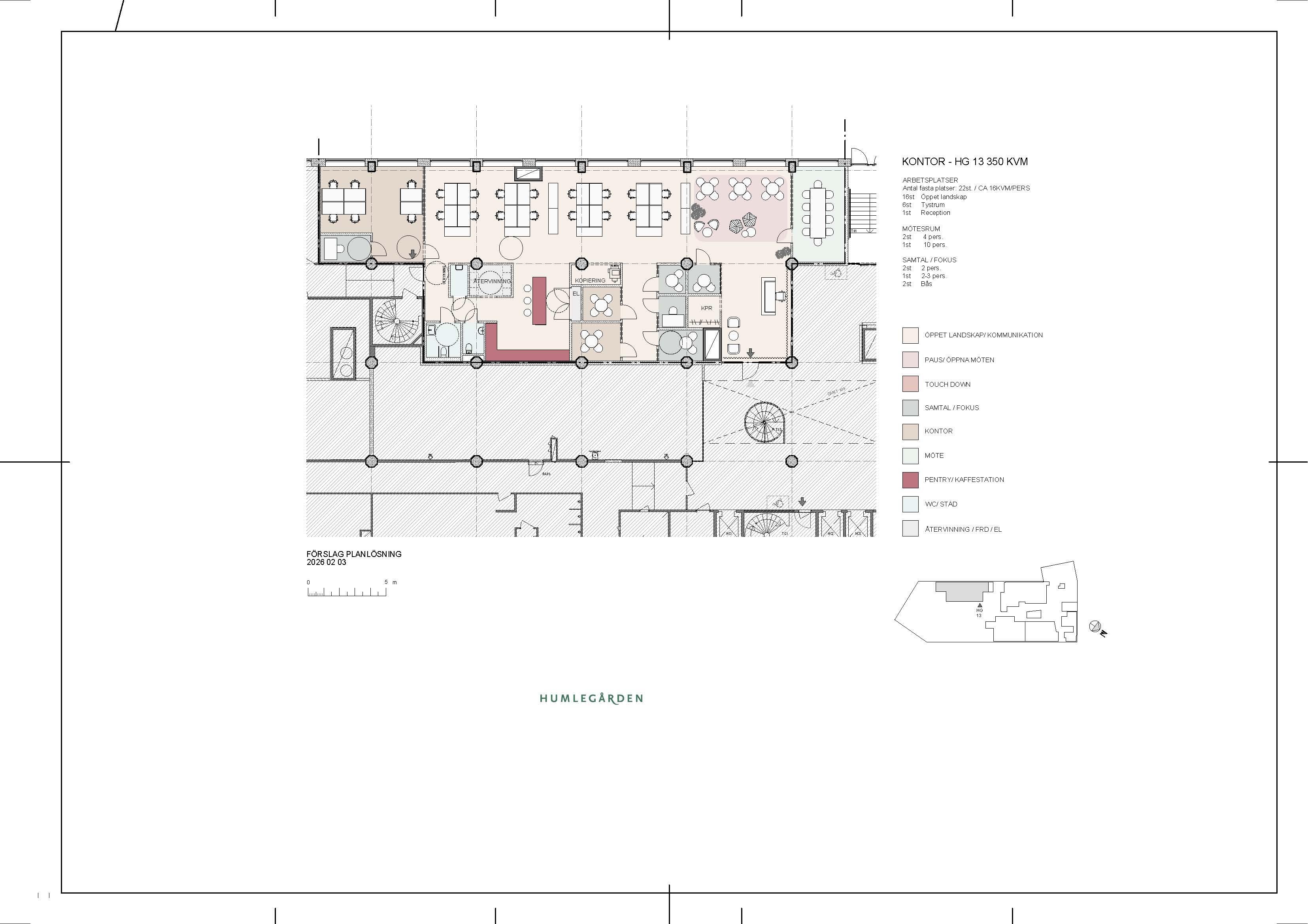
En välplanerad lokal med flexibel planlösning som kan anpassas efter hyresgästens behov. Här finns ca 16 arbetsplatser i öppet landskap samt ytterligare 6 platser i ett mer avskilt kontorsrum. Egen reception ger ett professionellt första intryck och generösa fönsterpartier mot lugna Härdgången skapar en inbjudande atmosfär. Lokalen erbjuder en bra mix av mötesrum, mindre samtalsrum och en lounge för gemenskap. Strax intill finns husets lastkaj, perfekt för verksamheter med behov av smidiga in- och utleveranser.
Fastigheten har ett rymligt garage med gott om både vanliga parkeringsplatser och laddplatser. Det finns även cykelrum med möjlighet att ladda cykelbatterier, vilket underlättar för både bil- och cykelpendlare.
| Adress: Sankt Eriksgatan 117 | Byggår: 1940-tal, 1986–88 |
| Area: 350 kvm | Område: Hagastaden |
| Typ: Kontor | Våningsplan: 1 |
| Kommun: Stockholm |
I kvarteret återfinns allt du behöver ur servicesynpunkt och ett spännande utbud av mat och dryck. Restaurang Rummel belägen i en spektakulär byggnad i trä, som fått ett mycket fint mottagande. Restaurang ART och Din-Din Club är restauranger som ligger runt hörnet. Tillsammans med områdets alla övriga caféer, restauranger och barer har du tillgång till ett brett utbud oavsett om du är ute efter frukost, lunch eller middag. Vill man handla mat, dryck eller andra nödvändigheter finns Coop, Hemköp, Systembolaget och apotek i närområdet. I Hagastaden finns flera bra hotell, Elite Palace Hotel, Blique by Nobis och Elite Hotel Carolina Tower. För den konstintresserade finns mycket att upptäcka i det närliggande Stockholm Gallery District, där några av Sveriges främsta gallerier återfinns.
Fastigheten ligger centralt i mötet mellan Vasastaden och Hagastaden, vilket skapar en livlig urban miljö. Området har växt snabbt de senaste åren med många nya bostäder och arbetsplatser. Intill fastigheten ligger den härliga Norra Stationsparken. Hagastaden är känt för sitt innovationsklimat och är en del av Stockholms life science-kluster med företag som Karolinska universitetssjukhuset och Institutet. KTH och Stockholms universitet ligger också inom gångavstånd. Området erbjuder även många moderna träningsanläggningar och natursköna områden som Hagaparken, Brunnsviken och Karlbergs slott.
Detta är en plats med utmärkta kommunikationer. Närmsta stationen för Citybanan är belägen endast 300 meter från fastigheten. Odenplans respektive S:t Eriksplans tunnelbanestationer nås med cirka fem minuters promenad. Ett flertal bussar samt flygbussar trafikerar området. För bilburna är läget smidigt med närhet till E4, E18, E20 och Norra Länken. Under 2028 utökas kommunikationerna ytterligare då en ny tunnelbanestation på gröna linjen öppnas i Hagastaden, som en del i utbyggnaden mellan Odenplan och Arenastaden.
Fyll i dina uppgifter så kontaktar vi dig.