EN
Kontor

Tegeluddsvägen 21, Gärdet

Upptäck inspirerande Duoliten och ett helt våningsplan bara för er

Désirée Walkenström

Uthyrning

Skicka e-post
Intresseanmälan

Lokalinformation

I mötet mellan stadens puls och grönskande Gärdet ligger Duoliten en karaktärsfull kontorsfastighet med rötter i 70-talets arkitektur. Här finns allt för en smidig arbetsdag. Börja dagen med en kaffe från husets café, boka in ett möte i flexibla lokaler eller ät en bit mat utan att lämna byggnaden. Efter jobbet är det nära till både träning, avkoppling och kvällens middag. Du tar dig enkelt hit oavsett om du cyklar, kör bil eller åker kollektivt.

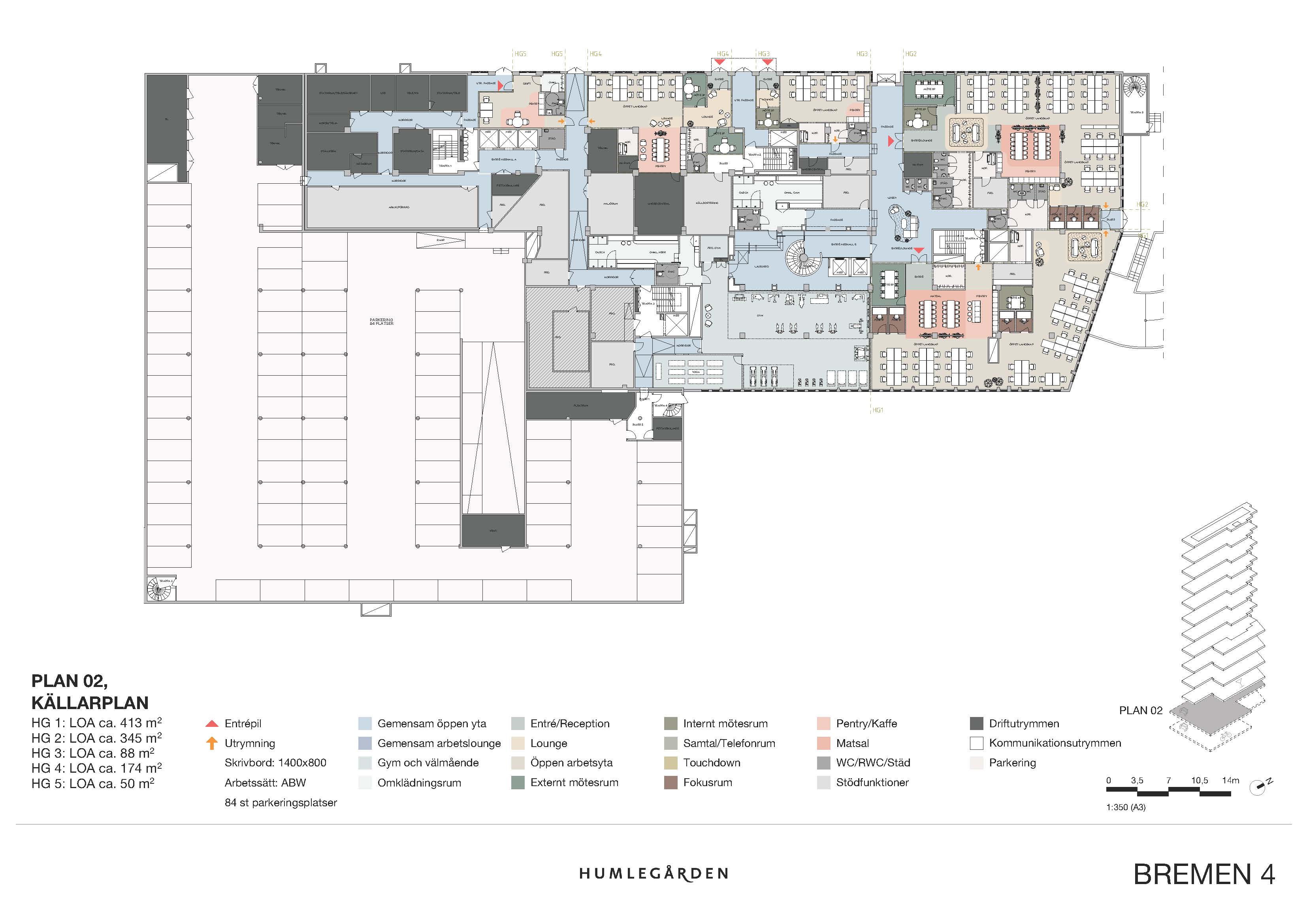
Planlösning

På plan 5 i Duoliten väntar ett helt våningsplan om 2 409 kvm på sin framtida hyresgäst. Lokalen erbjuder ett öppet kontorslandskap, flera pentryn med matsal och smarta touchdownplatser för spontana möten. Här finns även flera entréer med inbjudande loungemiljöer, mötesrum i olika storlekar samt tysta zoner för koncentrerat arbete. En flexibel och inspirerande miljö där ert team kan växa och trivas.

Parkering

Parkeringsplatser finns i garaget som sträcker sig över två plan.

Bekvämligheter

  • Konferens
  • Mötesrum
  • Omklädningsrum
  • Reception
  • Terrass
  • Lastkaj
  • Lastport
  • Parkering
  • Cykelrum
  • Gym
  • Restaurang

Fakta om lokalen

Adress: Tegeluddsvägen 21 Byggår: 1979
Area: 2 409 kvm Område: Gärdet
Typ: Kontor Våningsplan: 5
Kommun: Stockholm

Planritning

Området

Service

Runt knuten väntar tennishallar, bad, gym, löpspår och det grönskande Gärdet. Kvarteren bjuder även på ett varierat utbud av restauranger för både lunchpauser och kvällshäng.

Omgivning

Duoliten har en attraktiv adress i början av Tegeluddsvägen på gränsen mellan Gärdet och Stockholms Hamnkvarter. De senaste 100 åren har området omvandlats från kunglig jaktmark till en dynamisk stadsdel för arbete och boende. Funkisarkitektur möter modern stadsutveckling i en miljö där kontraster bidrar till områdets unika karaktär.

Kommunikationer

Att ta sig till och från Duoliten är enkelt med smidig tillgång till både kollektivtrafik och stora trafikleder. Gärdets tunnelbanestation och närliggande busshållplatser ligger bara några minuter bort. För bilpendlare finns garage i två plan under huset. Närheten till Lidingövägen, Hjorthagsvägen och Norra länken gör det lätt att ta sig hit från flera håll. Vill du ta bilen till jobbet men slippa äga en? Tjänster som Hyre och KINTO Share gör det möjligt.

Vill du veta mer om Tegeluddsvägen 21?

Fyll i dina uppgifter så kontaktar vi dig.

You must agree before submitting.